Categories Okna

Okna 3-komorowe: poznaj ich znaczenie i kluczowe zalety dla Twojego domu

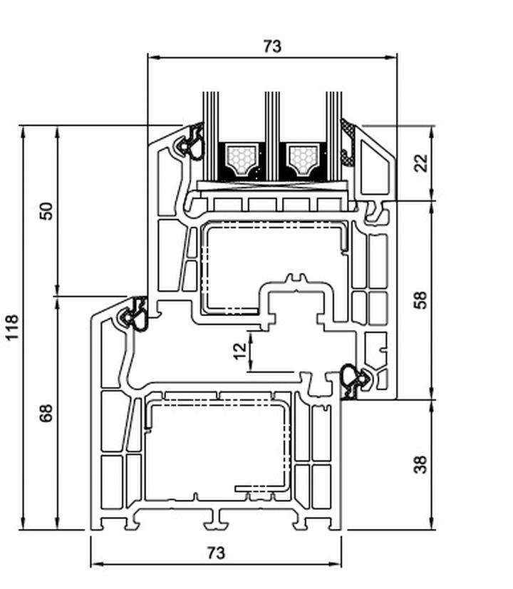
Izolacja termiczna staje się coraz bardziej popularnym tematem, szczególnie w momencie, gdy zimowe mrozy wepchają się do naszych domów i zmuszają nas do opuszczenia ciepłego łóżka. Na scenę wkraczają zatem nasze superbohaterki – okna 3-komorowe! Te fenomenalne konstrukcje nie tylko skutecznie blokują zimne powietrze, ale również przyczyniają się do ograniczenia wydatków na ogrzewanie. W końcu, kto chciałby, aby jego dom przypominał lodówkę? Komory, które ukrywają się w ramach okien, nie stanowią jedynie pustych przestrzeni – to właśnie tam odbywa się niezwykła akcja zatrzymywania ciepła wewnątrz. Im więcej komór, tym lepsza okazuje się izolacja, dlatego wybór okien 3-komorowych stanowi naprawdę rozsądny krok!

Co więcej, liczba komór to tylko jeden z aspektów, który sprawia, że okna 3-komorowe zyskują tak dużą popularność. Istotną rolę odgrywa również głębokość profilu okna, która ma fundamentalne znaczenie dla poziomu izolacyjności. Standardowe 70 mm przekształca się często w niezawodny raj dla ciepła, natomiast 80 mm poprawia tę solidną bazę, dodając jeszcze więcej komór. Fascynujące, prawda? W końcu trudno przejść obojętnie obok takiej okazji, aby cieszyć się przyjemnym ciepłem podczas zimowych wieczorów! Nie zapominajmy również o komforcie akustycznym! Większa liczba komór nie tylko chroni przed zimnem, ale również tłumi niepożądane hałasy z zewnątrz, co stanowi wieczny problem mieszkańców miejskich dżungli.

Dlaczego warto zainwestować w okna 3-komorowe?

Ekologiczne rozwiązania w oknach

Decydując się na okna 3-komorowe, inwestujesz jak w dobre papiery wartościowe – pozwalają one oszczędzić pieniądze w dłuższej perspektywie! Umożliwiają efektywne zarządzanie ciepłem, a dodając do nich potrójne oszklenie, osiągasz niesamowity poziom efektywności. Kto by pomyślał, że dodatkowa szyba i odpowiedni gaz w przestrzeniach międzyszybowych mogą tak znacząco ograniczyć straty ciepła? Wyjście z domu w skarpetach przestanie być powodem do wstydu, gdy na zewnątrz sypać się będą śniegi! Dla tych, którzy pragną ciszy i spokoju, okna 3-komorowe stają się niezastąpionym przyjacielem w walce z hałasem, skutecznie odcinając nas od donośnych dźwięków. Dzięki nim komfort życia znacznie wzrasta, co pozwala ci na spokojne wypicie porannej kawy.

Podsumowując, inwestycja w okna 3-komorowe przypomina zarzucenie ciepłej kołdry na mroźny wieczór – to rozwiązanie przyjemne, wygodne i wręcz niezbędne. Łączy w sobie praktyczność oraz nowoczesny design. Z pewnością warto w nie zainwestować, jeśli marzysz o tym, aby twój dom stał się oazą ciepła, a rachunki za ogrzewanie zaczęły wreszcie spadać. Zatem nie zwlekaj – pora na zakupy! Czas na okna 3-komorowe!

Aspekt Opis
Izolacja termiczna Okna 3-komorowe skutecznie blokują zimne powietrze, co przyczynia się do oszczędności na ogrzewaniu.
Liczba komór Więcej komór zwiększa poziom izolacyjności, co czyni okna 3-komorowe rozsądnym wyborem.
Głębokość profilu Standardowa głębokość 70 mm lub 80 mm poprawia izolacyjność i dodaje więcej komór.
Komfort akustyczny Większa liczba komór pomaga tłumić hałasy z zewnątrz, co jest istotne dla mieszkańców miast.
Efektywność energetyczna Potrójne oszklenie i odpowiedni gaz w przestrzeniach międzyszybowych ograniczają straty ciepła.
Komfort życia Okna 3-komorowe podnoszą komfort życia, pozwalając na cieszenie się ciszą i ciepłem w domu.
Nowoczesny design Łączą praktyczność z nowoczesnym wyglądem, co czyni je atrakcyjną opcją dla każdego domu.
Zobacz również:  Jak wybrać klamki do okien, które podniosą bezpieczeństwo i dodadzą stylu?

Ciekawostką jest, że okna 3-komorowe mogą zredukować straty ciepła nawet o 50% w porównaniu do tradycyjnych okien, co może znacząco przełożyć się na niższe rachunki za ogrzewanie.

Ekologiczne Rozwiązania: Dlaczego Wybór Okien 3-komorowych Jest Przyjazny dla Środowiska

Wybór okien do naszego mieszkania stanowi niełatwe zadanie. Na rynku mamy szeroki wachlarz opcji, jednak okna 3-komorowe stają się coraz bardziej popularne. Dlaczego tak się dzieje? Otóż te okna stanowią znakomitego sprzymierzeńca ekologów! Oferują one doskonałe właściwości izolacyjne, co z kolei skutkuje mniejszym zużyciem energii potrzebnej do ogrzewania. Im mniej energii wykorzystujemy, tym niższa emisja CO2, co przyczynia się do ochrony naszej planety. Dlatego też inwestycja w okna z trzema komorami to krok ku ekologii oraz dbałość o nasz budżet!

Energooszczędne okna 3-komorowe

Okna z komorami nie są jedynie pustymi przestrzeniami – to małe bohaterzy, którzy dbają o komfort, zapewniając nam ciepło zimą oraz chłód latem. Więcej komór oznacza lepszą izolację, co ostatecznie wpływa na to, że nasze rachunki za ogrzewanie nie rosną w zastraszającym tempie! Jednak warto mieć na uwadze, że nie liczba komór ma kluczowe znaczenie, lecz ich jakość. Nie miejmy złudzeń – 40 komór w wąskim profilu nie zdziała cudów; to tak, jakby dawać rybie czapkę przeciwdeszczową! Wybierając okna, warto pamiętać, że lepsza jakość to klucz do sukcesu.

Okna 3-komorowe a komfort akustyczny

Nie tylko ciepło ma dla nas znaczenie! Okna 3-komorowe doskonale wygłuszają hałasy z zewnątrz, co stanowi idealne rozwiązanie dla osób pragnących ciszy w żywiołowych miastach. Zamiast słyszeć sąsiadów hałasujących za ścianą, możecie cieszyć się słuchaniem ulubionej muzyki w spokoju. Mniejsza liczba zakłóceń dźwiękowych zapewnia lepszy sen oraz redukcję stresu, co także wpływa na nasze zdrowie. Jak widać, wybór tych okien przynosi wiele korzyści mogących odmienić nasze życie!

  • Lepsza izolacja termiczna, co prowadzi do niższych rachunków za ogrzewanie
  • Wygłuszenie hałasów z zewnątrz, co poprawia komfort akustyczny
  • Mniejsze zużycie energii, co przyczynia się do ochrony środowiska
  • Wyższa jakość materiałów, co przekłada się na trwałość okien

Reasumując, wybór okien 3-komorowych to nie tylko kwestia estetyki, ale przede wszystkim inwestycja w przyszłość naszej planety oraz poprawa komfortu codziennego życia. Dzięki niezawodnym komorom zyskujemy lepszą izolację termiczną i akustyczną, co przekłada się na niższe rachunki oraz ciszę w mieszkaniu. Zatem, co powiecie na punkty za ekologię, komfort i oszczędności? Czas na okna 3-komorowe!

Zobacz również:  Jak łatwo wyregulować okna PCV – krok po kroku w filmie instruktażowym

Nowoczesny Design: Estetyka Okien 3-komorowych w Architektury Twojego Wnętrza

Okna 3-komorowe izolacja termiczna

Nowoczesny design wnętrz staje się coraz bardziej złożony, co czyni wybór odpowiednich okien nie tylko decyzją techniczną, ale także estetyczną. Okna 3-komorowe, które są jednocześnie praktyczne i stylowe, oferują szereg korzyści, mogących całkowicie odmienić wrażenie przestrzeni, w której żyjemy. Czym jednak dokładnie są te komory i dlaczego mogą zyskać miano kluczowego elementu Twojego wnętrza? Odpowiedź brzmi prosto – komory w profilach okiennych wpływają na izolacyjność cieplną oraz akustyczną, co w efekcie decyduje o naszym codziennym komforcie. Oznacza to, że mogą chronić nasze uszy przed hałasem za oknem oraz ochronić portfel przed wysokimi rachunkami za ogrzewanie!

Im więcej komór, tym lepsze ciepło! A kto z nas nie marzy o ciepłym domu, szczególnie w mroźne zimowe wieczory? Komory w profilach okiennych działają jak puszka ciepła, zatrzymując je wewnątrz. Co więcej, przeciwnicy wielokomorowych okien czasami próbują rzucić wyzwanie na rzecz argumentów, jednak przy tak skutecznej izolacji termicznej i akustycznej, każdy głos oburzenia szybko znika z uchem w cieple. Pomyśl tylko, jak cudownie jest oddać się lekturze przy oknie, które nie tylko wygląda świetnie, ale również chroni przed zimnym przeciągiem.

Dlaczego warto zainwestować w estetykę komór okiennych?

Mówiąc o estetyce, warto podkreślić, że nowoczesne okna 3-komorowe przychodzą w wielu eleganckich wersjach wykończenia, co sprawia, że doskonale wpasowują się w różne style architektoniczne. Od surowego, industrialnego po ciepły, skandynawski – te okna mają to „coś”, co nadaje pomieszczeniu wyjątkową klasę! Co więcej, dobrze dobrane okna potrafią optycznie powiększyć przestrzeń i nadać jej lekkości. Może nie zyskasz dodatkowych metrów kwadratowych, ale dzięki dobrze zaprojektowanym oknom sprawisz, że Twój pokój będzie wyglądał na większy niż kiedykolwiek!

Ostatecznie nowoczesny design z komorami okiennymi to nie tylko kwestia estetyki, ale także efektywności. Im więcej komór, tym lepsza izolacja. A to przekłada się na mniejsze straty ciepła przez okna oraz więcej pieniędzy na koncie. Więc kto może stwierdzić, że nie można mieć wszystkiego? Wygoda, piękno i oszczędności – jak śpiewał pewien znany artysta: „Nie ma jak u siebie!” Teraz przynajmniej mamy wiedzę, jak uczynić to z klasą! Wybierając okna 3-komorowe, stawiasz na nowoczesność, którą Twoje wnętrze bez wątpienia pokocha od pierwszego wejrzenia!

Czy wiesz, że odpowiednio dobrane okna 3-komorowe mogą zwiększyć wartość Twojego domu? Estetyka oraz wysoka efektywność energetyczna to elementy, które przyciągają potencjalnych nabywców, sprawiając, że inwestycja w nowoczesne okna może się opłacić w przyszłości.

Koszty i Oszczędności: Analiza Finansowa Inwestycji w Okna 3-komorowe

Okna 3-komorowe przypominają nowe skarpetki – może to nie najważniejsza rzecz w życiu, lecz przy długotrwałym użytkowaniu z pewnością docenimy ich komfort. Inwestując w takie okna, otwieramy drzwi do oszczędności, gdyż nie tylko zadbają o nasz portfel przy płaceniu za ogrzewanie, ale również podniosą estetykę naszego domu. Jak to wszystko działa? Już tłumaczę! Dzięki kilku komorom w profilu, które tworzą pułapki dla ciepła, okna te pełnią rolę doskonałego izolatora. Zakochasz się w tym uczuciu, gdy zaobserwujesz, jak oszczędności na rachunkach za energię zaczynają zasilać Twoje konto bankowe!

Zobacz również:  Jakie kolory okien podniosą wartość Twojego domu? Sprawdź nasze porady!

Nie ma co ukrywać – każdy pragnie, aby jego dom nie tylko emanował przytulnością, ale także charakteryzował się ekonomicznością. Dlatego liczba komór w oknach odgrywa kluczową rolę, nie tylko w zapewnieniu izolacji, ale także w ograniczaniu hałasu z zewnątrz. Wyobraź sobie sytuację, w której zamiast słyszeć sąsiada, który z zapałem zajmuje się ogrodnictwem o szóstej rano, możesz cieszyć się ciszą. Dzięki mniejszym stratom ciepła oraz lepszej izolacyjności akustycznej, płacenie za ogrzewanie z pewnością nie wpędzi Cię w frustrację. Czasami warto zainwestować dodatkowe środki, aby później żyć w spokoju.

Dlaczego warto zainwestować w okna 3-komorowe?

Wybierając okna 3-komorowe, zyskujemy szansę na nowoczesne rozwiązania, takie jak potrójne szklenie, które sprawdza się świetnie nawet w ekstremalnych warunkach pogodowych. Mówiąc prościej, zimą zachowują ciepło, a latem skutecznie blokują upały. Oczywiście taka inwestycja nie należy do najtańszych, jednak biorąc pod uwagę długofalowy wpływ na nasze finanse, szybko się zwróci. Możesz oszczędzać nie tylko na ciepłej herbacie, ale również na rachunkach za ogrzewanie. A kto by nie pragnął mieć więcej pieniędzy na dodatkowe przyjemności? Może nowy grill na taras?

Warto także pamiętać, że nie tylko kwestie finansowe, ale również ekologiczne powinny być dla nas istotne. Im mniej energii marnujemy na ogrzewanie, tym lepiej wpływamy na naszą planetę. Inwestycja w okna 3-komorowe to zatem rozwiązanie korzystne zarówno dla naszego portfela, jak i dla dobra Ziemi. Dlatego niech Twoje okna pozostaną zamknięte, a portfel otwarty na oszczędności – w końcu życie jest zbyt krótkie, aby marnować pieniądze na nadmierne wydatki na ogrzewanie!

Oto kilka korzyści płynących z zastosowania okien 3-komorowych:

  • Lepsza izolacja termiczna
  • Ograniczenie hałasu z zewnątrz
  • Osłona przed ekstremalnymi warunkami pogodowymi
  • Niższe rachunki za ogrzewanie
  • Przyjazne dla środowiska rozwiązanie
Ciekawostką jest, że w przypadku okien 3-komorowych, ich dodatkowa warstwa izolacji może obniżyć koszty ogrzewania nawet o 30% w porównaniu do standardowych okien jednoszybowych, co w dłuższym okresie przynosi znaczące oszczędności finansowe oraz zmniejsza nasz ślad węglowy.

Prowadzę bloga ApartamentyLido.pl, na którym dzielę się swoją pasją do domu, budowy, remontów oraz aranżacji wnętrz. Od lat interesuję się tym, jak tworzyć przestrzenie, które są nie tylko estetyczne, ale przede wszystkim funkcjonalne i wygodne na co dzień – zarówno w domach prywatnych, jak i apartamentach.

Na blogu opisuję kolejne etapy budowy domu, wyzwania związane z remontami oraz praktyczne rozwiązania, które sprawdziły się w rzeczywistości. Dużą uwagę poświęcam meblom – ich jakości, funkcjonalności i dopasowaniu do stylu wnętrza. Pokazuję, jak świadomie wybierać wyposażenie i materiały, aby tworzyć spójne i ponadczasowe aranżacje.

Dodaj komentarz

Twój adres e-mail nie zostanie opublikowany. Wymagane pola są oznaczone *